Pronájem reprezentativních kancelářských prostor 467 m² v lokalitě Praha 8 - Karlín

19,30 EUR za m2/měsíc
+ servisní poplatky 126 Kč/m² + DPH. ~ Neplatíte provizi ~

G - Mimořádně nehospodárná

Ukázat na mapě Mám zájem

Popis nabídky

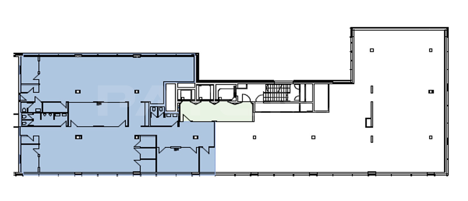
Nabízíme pronájem kancelářských prostor 467 m², které se nachází ve 2.patře v moderní administrativní budovy v lokalitě Praha 8 - Karlín.

River Garden Office II/III je synonymem moderního pracovního prostředí v jednom z nejžádanějších pražských míst – Karlíně. Komplex nabízí vysoký standard kanceláří s flexibilním uspořádáním, ideální pro menší i větší společnosti. Budovy získaly prestižní certifikaci BREEAM v kategorii Excellent, což potvrzuje jejich ekologický a energeticky efektivní provoz.

Budovy se nachází v srdci Karlína, pouhé 2 minuty chůze od stanice metra B Křižíkova a tramvajové zastávky. Centrum Prahy je dosažitelné během 5 minut autem, 10 minut MHD nebo 20 minut pěšky. Strategická poloha zajišťuje snadnou dostupnost pro zaměstnance i klienty, ať už cestují autem, na kole nebo hromadnou dopravou.

Kancelářské prostory splňují nejvyšší standardy:
- Individuálně nastavitelné klimatizační a ventilační systémy
- zdvojené podlahy
- optické kabely
- snížené podhledy s integrovaným osvětlením
- kamerový systém
- nepřetržitá ostraha a profesionální správa objektu
- 4x reprezentativní recepce
- dostatek parkovacích míst
- dobíjecí stanice pro elektromobily
- cyklo parkoviště se šatnami a sprchami
- laundry boxy a pet-friendly přístup.

Budovy disponují relaxační zónou ve vnitrobloku a terasami s úchvatnými výhledy na Vltavu nebo centrum Prahy. Přilehlé okolí nabízí vše od stylových restaurací, kaváren a bister po zelené plochy podél nábřeží či na Karlínském náměstí. Pro sportovní nadšence je v blízkosti populární cyklostezka, fitness centra nebo jóga studia.

Karlín je moderní městská část, která kombinuje historii, kulturu a živý městský život. Najdete zde stylové restaurace, tradiční pekárny, kulturní akce a prostor k relaxaci. Spojení historické architektury a současného životního stylu činí z této lokality ideální místo pro firmy, které chtějí nabídnout svým zaměstnancům nejen práci, ale také inspiraci a rovnováhu mezi pracovním a osobním životem.

River Garden Office II/III je místo, kde se spojuje práce, pohodlí a styl života. Vstupte do světa moderních kanceláří na jedné z nejatraktivnějších pražských adres.

Prostory k dispozici od 4/2025.

Fotografie jsou ilustrační, pořízené v jiném patře budovy.

Možnost dalších výměr v budově.

Pro více informací mě neváhejte kontaktovat, rád Vám zařídím osobní prohlídku.

V této lokalitě Vám můžeme nabídnout další zajímavé prostory. Více nabídek z našeho portfolia naleznete na našich webových stránkách.

Mé služby jsou pro Vás bezplatné.

~ Neplatíte provizi ~

Informace o nabídce

Lokalita
Okres Hlavní město Praha
Město Praha
Městská část Praha 8
Informace o nabídce
Číslo zakázky N77797
Datum aktualizace 6. 11. 2025
Druh prostor Kancelář
Druh stavby Skeletová
Stav objektu Velmi dobrý
Typ domu Patrový
Plocha prostor 467 m2
Užitná plocha 467 m2
Počet podlaží 8
K dispozici od 1. 11. 2025
Umístění objektu Centrum obce
PENB: Náročnost budovy G - Mimořádně nehospodárná
Výtah
Recepce
Ostraha
Bezbariérový přístup
Klimatizace
Vytápěno
Telekomunikace
Kabelové rozvody, Optika
Parkování
ANO

Máte zájem o tuto nemovitost?

Kontaktujte přímo makléře, který ji má na starost.
Zdeněk Pýcha

Napište nám

*
*
*