Podnájem kancelářských prostor 356 m² v lokalitě Praha 5 - Nové Butovice

9 EUR za m2/měsíc
+ poplatky a služby 120 Kč /m²/ měsíc. ~ Neplatíte provizi ~

A - Mimořádně úsporná

Ukázat na mapě Mám zájem

Popis nabídky

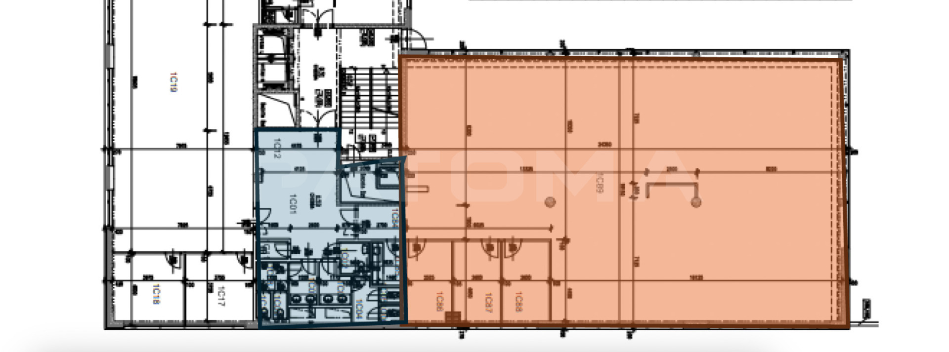
Nabízíme Vám podnájem kancelářských prostor o velikosti 356 m² v 1. PP moderní budovy v administrativním komplexu Avenir Business Park v Praze 5, Nových Butovicích.

Dispozice je převážně openspace a několik kanceláří, vlastní kuchyňka. Toalety jsou sdílené na patře.

Budova nabízí 5 nadzemních podlaží, bezproblémové parkování díky podzemním a nadzemním parkovištím s kapacitou 500 parkovacích míst, kolárnu se sprchami ve společných prostorech a centrální recepci s ostrahou 24/7.

Kanceláře jsou klimatizované s individuální regulací, vybavené dvojitými podlahami, vnitřními žaluziemi, elektrickými venkovními žaluziemi a otevíratelnými okny.

Budova je jednoduše přístupná díky MHD. Stanice metra Nové Butovice je
vzdálená pouze 350m od budovy, autobusové linky jsou situovány na metru Nové Butovice.
Lokalita budovy zajišťuje vynikající návaznost na pražské letiště i do centra města, kde dojezdová doba činí 15 min.

Business Park je obklopen přírodním parkem Prokopské údolí a nabízí tak možnost relaxace nebo cyklistiky. Uprostřed kancelářského komplexu se nachází prostorné nádvoří plné zeleně se smart lavičkami, wifi připojením, restaurací a kavárnou.

V docházkové vzdálenosti množství obchodů, restaurací, bank i fitness centrum díky pár kroků vzdálené Galerii Butovice.

Prostor je ihned k dispozici s podnájemní smlouvou do 12/2026, možnost pokračovat ve standardní NS

Pro více informací mě neváhejte kontaktovat, rád Vám zařídím osobní prohlídku.

V této lokalitě Vám můžeme nabídnout další zajímavé prostory. Více nabídek z našeho portfolia naleznete na našich webových stránkách.

Mé služby jsou pro Vás bezplatné.

~ Neplatíte provizi ~

Informace o nabídce

Lokalita
Okres Hlavní město Praha
Město Praha
Městská část Praha 5
Informace o nabídce
Číslo zakázky N78147
Datum aktualizace 20. 11. 2025
Druh prostor Kancelář
Druh stavby Skeletová
Stav objektu Velmi dobrý
Typ domu Patrový
Plocha prostor 356 m2
Užitná plocha 511 m2
K dispozici od 1. 11. 2025
Umístění objektu Rušná část obce
PENB: Náročnost budovy A - Mimořádně úsporná
PENB: Ukazatel náročnosti budovy 56 kWh/m2
PENB: Norma vyhláška 148/2007 Sb.
Výtah
Ostraha - PCO
Recepce
Stravování
Ostraha
Klimatizace
Telekomunikace
Telefon, Internet, Kabelové rozvody, Optika
Doprava
Silnice, Autobus, MHD
Parkování
ANO

Máte zájem o tuto nemovitost?

Kontaktujte přímo makléře, který ji má na starost.
Zdeněk Pýcha

Napište nám

*
*
*